Sold Subject to Contract

Ostlers Yard, Fore Street, Chard

Bed icon  2    Bath icon  1    receptions icon  1

£155,000

Save Saved
Contact Us

For further details on this property please call us

01460 63600


Book a Viewing

Features

  • Charming Cottage
  • Two double Bedrooms
  • En-suite to Master
  • End of Terrace
  • Open plan Ground Floor Accomodation
  • Chain Free
  • Close to local shops, cafes and amenities
  • Courtyard Garden

Full Details

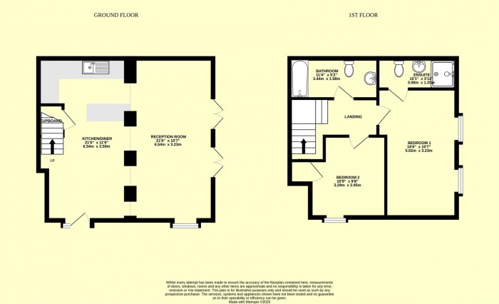
Open Plan Living Space (6..40 max x 6.32 max)

The ground floor comprises of an open plan living space and incorporates, kitchen, dining and sitting area. The kitchen and sitting area are separated by bare brick feature wall pillars. There are doors leading to a courtyard garden and stairs to the first floor.

First Floor Landing

Doors to bathroom and both bedrooms.

Bedroom One (5.03 max x 3.17 max)

Windows to the rear aspect and door to ensuite shower room.

En-suite Shower Room (3.08 max x 1.19 max)

Shower cubicle, low level WC and wash hand basin.

Bedroom Two (3.15 max x 2.99 max)

Window to the front aspect.

Bathroom (3.45 max x 1.67 max)

Bath with shower attachment over, low level WC and wash hand basin.

Outside

To the rear of the property there is an enclosed courtyard which wraps the rear and side of the property.

Floorplan for Ostlers Yard, Fore Street, Chard
EPC Graph for Ostlers Yard, Fore Street, Chard

Book a Viewing

1About You


Name

Phone Number

Email

Message

2Pick a Day


  1. THIS WEEK
  2. NEXT WEEK
  3. IN A FORTNIGHT

3Select a Time



The Property Ombudsman Trading Standards Institute Rightmove PrimeLocation Zoopla On The Market Deposit Protection Service