For Sale

Combe St. Nicholas, Chard

Bed icon  5    Bath icon  2    receptions icon  4

£575,000

Save Saved
Contact Us

For further details on this property please call us

01460 63600


Book a Viewing

Features

  • Five Bedroom Character House
  • Sought After Village Location
  • Combe St Nicholas - Named - Somerset’s top-performing primary school in 2024
  • Gated Off Road Parking
  • Four Reception Rooms + Utility Room
  • 2 Hourly Bus Chard - Taunton
  • Two Bathrooms + down stairs WC
  • Offered with no chain
  • Walking distance to Village shop and Pub.
  • Oil Fired Central Heating

Full Details

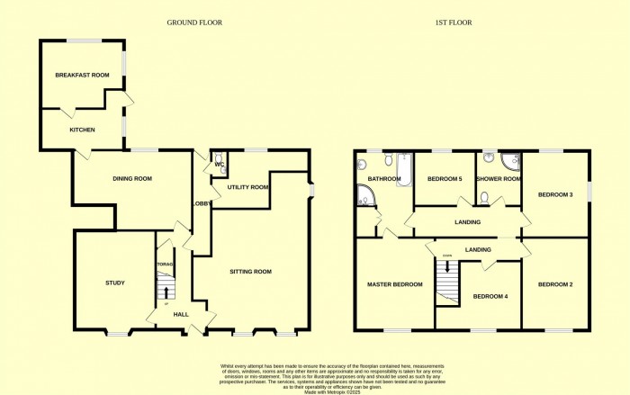
Entrance Hall

With stairs to the first floor and doors to;

Sitting Room (6.97 max x 5.30 max)

Double aspect with windows to the front and side aspects, log burner with hearth.

Reception 2 / Study (4.00 max x 4.10 max)

Window to the front aspect.

Rear Lobby (4.81 max x 1.24 max)

Leading from the entrance hall the rear lobby gives access to the WC and Utility room as well as the rear garden.

WC (1.37 max x 0.80 max)

Low level WC and wash hand basin.

Utility Room (4.84 max x 3.09 max)

With window to the rear aspect, plumbing for washing machine, fitted units and storage space.

Dining Room (5.91 max x 3.97 max)

Window to the rear aspect, door to kitchen;

Kitchen (5.64 max x 2.91 max)

Window to the side aspect, eye and base level units, range style cooker with extractor hood over, plumbing and space for dishwasher, space for fridge freezer, stainless steel 1.5 sink drainer, door to the rear garden and door to breakfast room;

Breakfast Room (4.12 max x 3.36 max)

Double aspect windows to to the rear and side.

First Floor Landing

The first floor landing gives access to to all upstairs rooms and is split front and back.

Master Bedrrom (4.59 max x 3.95 max)

Window to the front aspect, door to the en-suite, Jack and Jill bathroom.

En-suite Bathroom (4.28 max x 2.71 max)

Window to the rear aspect, doors to master bedroom and rear first floor landing. 4 piece bathroom suite including bath, wash hand basin, low level WC and separate shower cubicle.

Bedroom Two (4.57 max x 3.97 max)

Window to the front aspect.

Bedroom Three (3.85 max x 3.00 max)

Double aspect windows to the rear and side.

Bedroom Four (4.01 max x 3.41 max)

Window to the front aspect.

Bedroom Five (3.06 max x 2.68 max)

Window to the rear aspect.

Shower Room (2.26 max x 1.69 max)

Window to the rear aspect, shower cubicle, wash hand basin and low level WC.

Outside

To the rear, the enclosed garden is arranged over two levels, featuring a patio terrace, lawn, and well-stocked flower beds with a variety of mature trees, shrubs, and plants. Practical additions include gated off-road parking, a range of outbuildings with power and light, timber sheds, and a greenhouse – ideal for those with gardening interests or hobby pursuites.

To the front, the property overlooks the village green with local village store, post office and pub a short walk away.

Floorplan for Combe St. Nicholas, Chard
EPC Graph for Combe St. Nicholas, Chard

Book a Viewing

1About You


Name

Phone Number

Email

Message

2Pick a Day


  1. THIS WEEK
  2. NEXT WEEK
  3. IN A FORTNIGHT

3Select a Time



The Property Ombudsman Trading Standards Institute Rightmove PrimeLocation Zoopla On The Market Deposit Protection Service