Sold Subject to Contract

Newtown, Langport

Bed icon  3    Bath icon  1    receptions icon  2

Chain Free, £335,000

Save Saved
Contact Us

For further details on this property please call us

01460 63600


Book a Viewing

Features

  • Three Double Bedrooms
  • Large Kitchen/Dining/Family Room
  • 3+ Off Road Parking Spaces
  • Enclosed rear garden
  • Market Town Location
  • Chain Free

Full Details

A Spacious Three Double Bedroom Semi-Detached Home

A Spacious Three Double Bedroom Semi-Detached Home in the Heart of Langport, Somerset
Located in the popular market town of Langport, this generously proportioned three double bedroom semi-detached house offers excellent living space, ample parking, and fantastic potential for personalisation.
The property welcomes you with an entrance porch leading into a bright, dual-aspect lounge featuring a chimney breast and hearth—perfect as a cosy focal point. Double doors open into a well-sized kitchen, which flows seamlessly into the open-plan family room/dining area, creating an ideal space for modern living and entertaining. A convenient ground-floor WC completes the downstairs accommodation.
To the first floor are three comfortable double bedrooms along with a family bathroom equipped with a bath, WC, basin and separate shower cubicle.
Externally, the property benefits from off-road parking spaces and an enclosed rear garden. A brick-built outbuilding offers additional storage or workshop potential, though it would benefit from repair. While the house requires some minor redecoration, it presents a superb opportunity to create a wonderful family home in a sought-after Somerset location

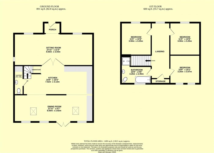
Floorplan for Newtown, Langport
EPC Graph for Newtown, Langport

Book a Viewing

1About You


Name

Phone Number

Email

Message

2Pick a Day


  1. THIS WEEK
  2. NEXT WEEK
  3. IN A FORTNIGHT

3Select a Time



The Property Ombudsman Trading Standards Institute Rightmove PrimeLocation Zoopla On The Market Deposit Protection Service