For Sale

St. Margarets Lane, South Chard, Chard

Bed icon  2    Bath icon  1    receptions icon  2

£285,000

Save Saved
Contact Us

For further details on this property please call us

01460 63600


Book a Viewing

Features

  • Chain Free
  • Two Bedrooms
  • Two Reception Rooms
  • Period Features
  • Driveway Parking
  • Village Location
  • Move In Ready
  • Courtyard Garden
  • EV Charging Point

Full Details

A charming two-bedroom period cottage

A charming two-bedroom period cottage dating back to circa 1850, beautifully positioned in the heart of the ever-popular village of Tatworth. This delightful home effortlessly blends character features with comfortable, move-in-ready accommodation and is offered to the market chain free.
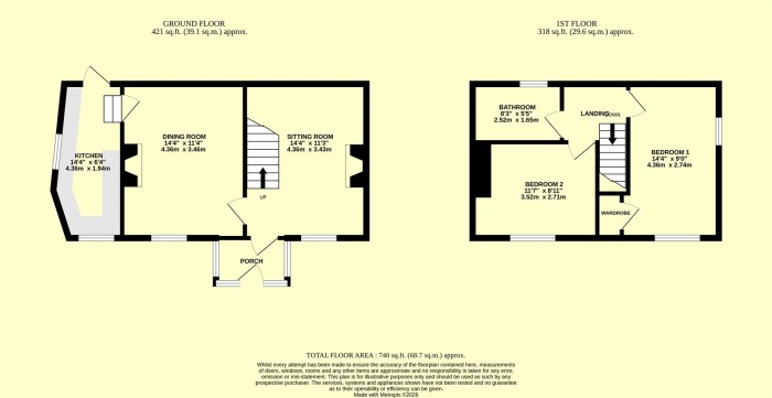
The property retains much of its original charm, including an open fire creating a cosy focal point in the sitting room. Accommodation is well balanced and comprises two reception rooms, a fitted kitchen, and a first-floor bathroom. Upstairs, there are two generous double bedrooms, both filled with natural light and period appeal.
Externally, the cottage benefits from driveway parking to the front, a rare and valuable feature for a village property, along with a private, low-maintenance courtyard garden to the rear—ideal for outdoor seating and entertaining.
This is a must-see home for buyers seeking a characterful cottage in a sought-after village location, with the added advantages of immediate occupancy and no onward chain. Early viewing is highly recommended to fully appreciate the charm and setting of this delightful property.

Floorplan for St. Margarets Lane, South Chard, Chard
EPC Graph for St. Margarets Lane, South Chard, Chard

Book a Viewing

1About You


Name

Phone Number

Email

Message

2Pick a Day


  1. THIS WEEK
  2. NEXT WEEK
  3. IN A FORTNIGHT

3Select a Time



The Property Ombudsman Trading Standards Institute Rightmove PrimeLocation Zoopla On The Market Deposit Protection Service