For Sale

Hollingarth Way, Hemyock, Cullompton

Bed icon  3    Bath icon  1    receptions icon  1

£225,000

Save Saved
Contact Us

For further details on this property please call us

01460 63600


Book a Viewing

Features

  • Priced To Sell
  • No Onward Chain
  • In Need Of Refurbishment Throughout
  • Three Bedrooms
  • Semi Detached
  • Garage & Driveway Parking
  • Sought After Village Location
  • Countryside Views

Full Details

3 Bedroom Semi-Detached Home in Hemyock Village –

Situated in the highly sought-after village of Hemyock, this three-bedroom semi-detached home presents a fantastic opportunity for buyers looking to modernise and add value. Requiring refurbishment throughout, the property is attractively priced to reflect the work needed, making it ideal for investors, developers, or those seeking a project in a desirable countryside setting.
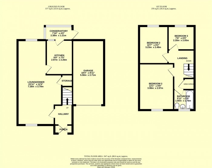
The ground floor accommodation comprises a spacious open-plan lounge/dining room, enjoying a double aspect that allows for plenty of natural light and creates a bright, airy living space. To the rear, there is a kitchen and a small conservatory overlooking the garden, offering additional reception space with potential for improvement.
Upstairs, the property provides three well-proportioned bedrooms, offering excellent scope to create a comfortable family home tailored to your own taste and style.
Externally, the property benefits from a private driveway providing off-road parking, along with a garage for additional storage or secure parking. The enclosed rear garden enjoys pedestrian gated access to the front and offers a safe and private outdoor space with attractive countryside views — perfect for those who appreciate village living and a rural outlook.
Located within a popular village community, Hemyock offers a charming rural lifestyle while remaining within easy reach of nearby towns and transport links.

Floorplan for Hollingarth Way, Hemyock, Cullompton
EPC Graph for Hollingarth Way, Hemyock, Cullompton

Book a Viewing

1About You


Name

Phone Number

Email

Message

2Pick a Day


  1. THIS WEEK
  2. NEXT WEEK
  3. IN A FORTNIGHT

3Select a Time



The Property Ombudsman Trading Standards Institute Rightmove PrimeLocation Zoopla On The Market Deposit Protection Service